République
Charenton (94)


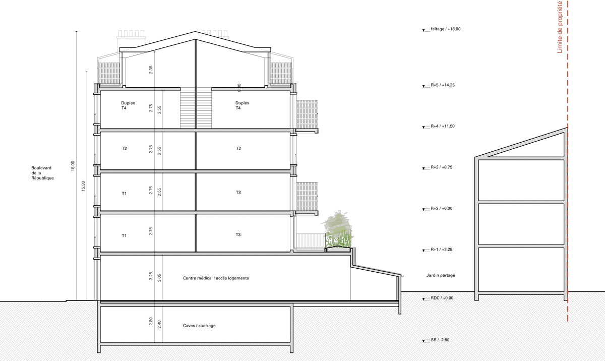
République, est un projet de surélévation d’un ancien centre médical situé à Charenton-le-Pont.
Le projet se décompose en deux programmes :
– Réhabilitation du centre médical et réduction sa surface pour ajouter un hall d’accueil pour des logements
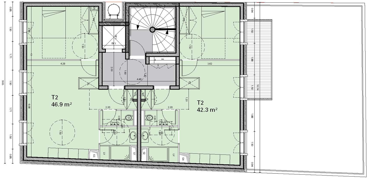
– Ajout de 5 étages sur la moitié du bâtiment côté rue pour créer 8 logements de tailles variées (du T1 au T4)
La toiture du centre médical à l’arrière (côté cour) est transformée en toiture terrasse largement végétalisée pour offrir un jardin suspendu à la copropriété et aux futurs locataires. La surélévation sur rue se compose de briques clairs, reprenant l’expression architecturale des bâtiments voisins tout en gardant sa propre identité architecturale .




