Marcillac

Aveyron (19)

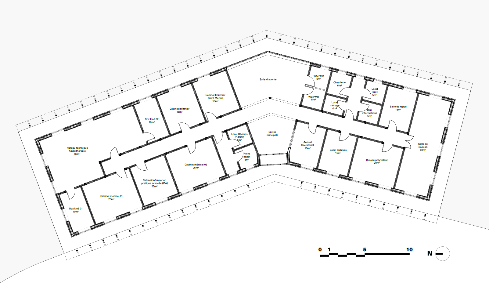
La Maison de Santé s’inscrit dans une démarche globale alliant fonctionnalité, qualité d’usage et intégration harmonieuse au tissu urbain et paysager existant. L’organisation spatiale répond à une logique simple et fonctionnelle, permettant une circulation claire entre les différents espaces de soins et d’accueil, tout en garantissant le confort et la sérénité des usagers.

La conception intègre dès l’origine la possibilité d’une extension future côté espace kinésithérapie, sans rupture structurelle ni fonctionnelle, afin d’accompagner l’évolution des besoins du territoire.

Le projet privilégie les matériaux durables et les systèmes techniques fiables, pour limiter les coûts de maintenance sur le long terme et optimiser le fonctionnement du bâtiment au quotidien.

L’architecture sobre et non ostentatoire du bâtiment, notamment grâce à l’utilisation du bois en façade et structure, permet d’intégrer discrètement le projet dans le terrain.