Nicolas
Paris (75)

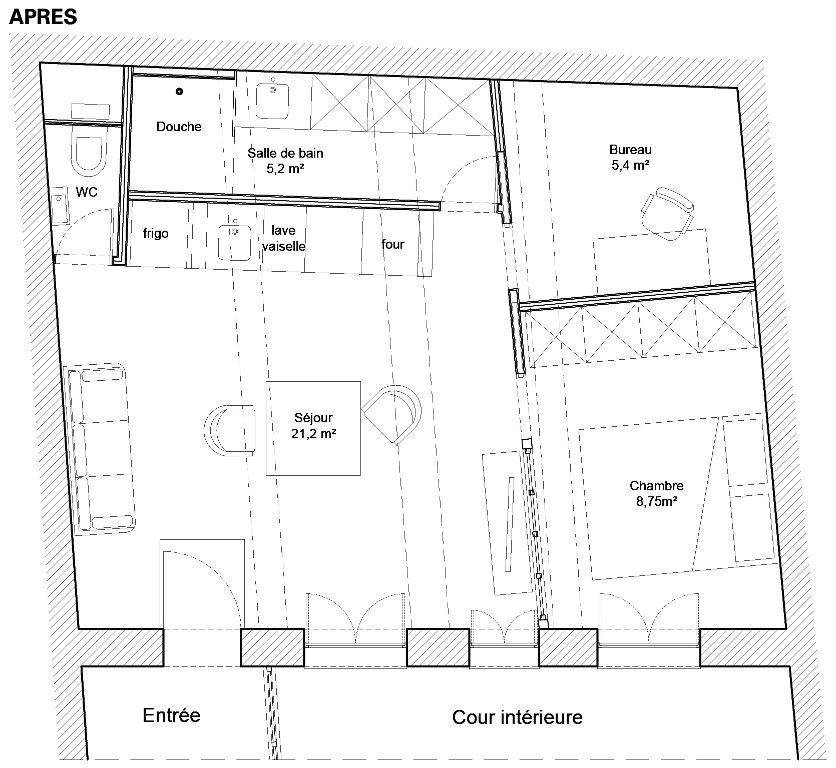
Situé à proximité immédiate de la place de la Bastille, ce projet consiste en la restructuration complète d’un ancien bureau pour le transformer en un appartement résidentiel fonctionnel. Le défi principal résidait dans la configuration compacte et mono-orientée du plateau, imposant une réflexion fine sur la diffusion de la lumière et la hiérarchisation des espaces.
Conscients des contraintes budgétaires, nous avons adopté une démarche de valorisation de l’existant : le plancher d’origine conservé et restauré apporte une empreinte historique au logement, tandis que les poutres porteuses ont été mises à nu et intégrées à l’esthétique intérieure. Cette approche, en plus d’être économique, confère au lieu une identité brute et authentique.
L’aménagement a été optimisé par une distribution fluide, maximisant chaque mètre carré sans multiplier les cloisons ou les circulations.






