Poissonniers
Paris (75)


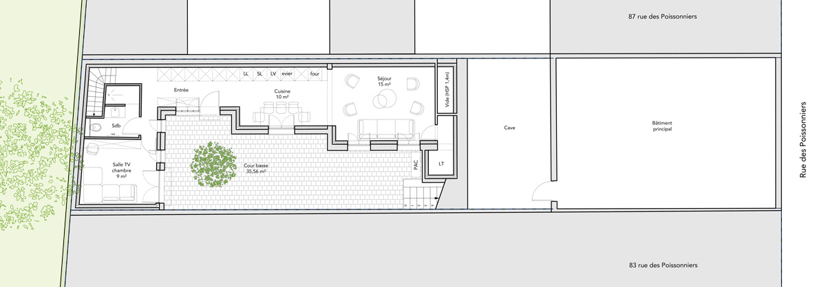
La Maison rue des Poissonniers, située au fond d’une copropriété est un projet de rénovation et de surélévation dans le milieu urbain parisien.
Ce projet architectural prend en compte son environnement urbain proche tout en intègrant les problématiques environnementales et urbanistiques de la ville :
– Une densification douce grâce à un développement urbain de petite envergure, n’impactant pas l’habitat environnant
– Une végétalisation et re perméabilisation du terrain grâce à la mise en place de toiture terrasses végétalisée et une cour pavée enherbée
– Une matérialité adaptée en fonction des bâtiments voisins





